Quadrilocale in vendita

Scoppito, Via roma - Contrada Civitatomassa
€ 100.000
4 locali 4 locali
80 Mq 80 Mq
1 bagno 1 bagno

Quadrilocale in vendita

Scoppito, Via roma - Contrada Civitatomassa

Descrizione annuncio

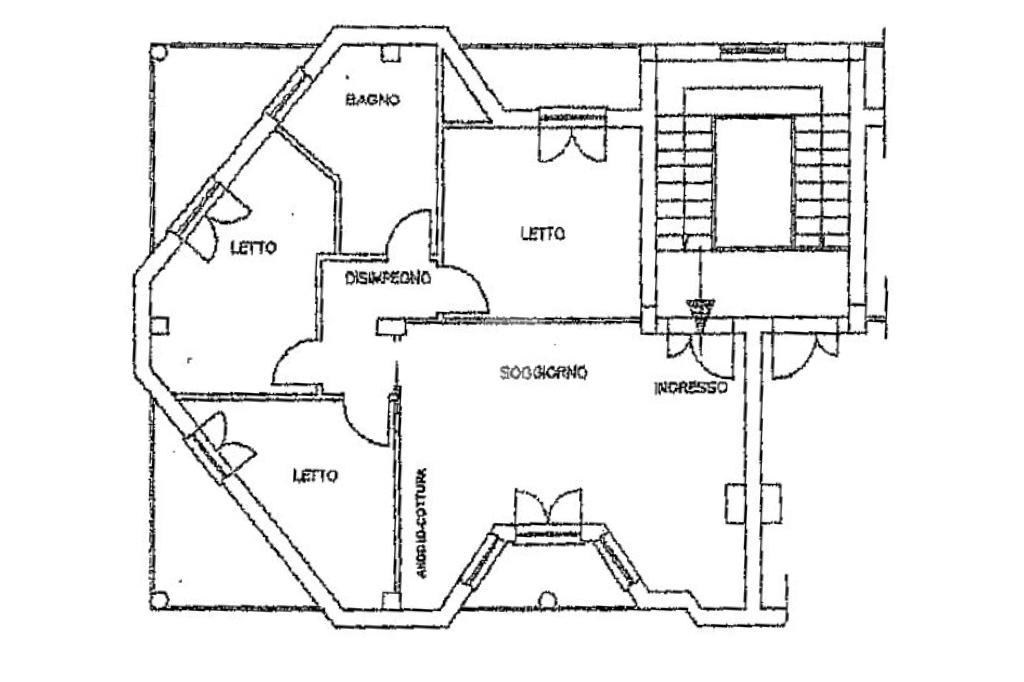
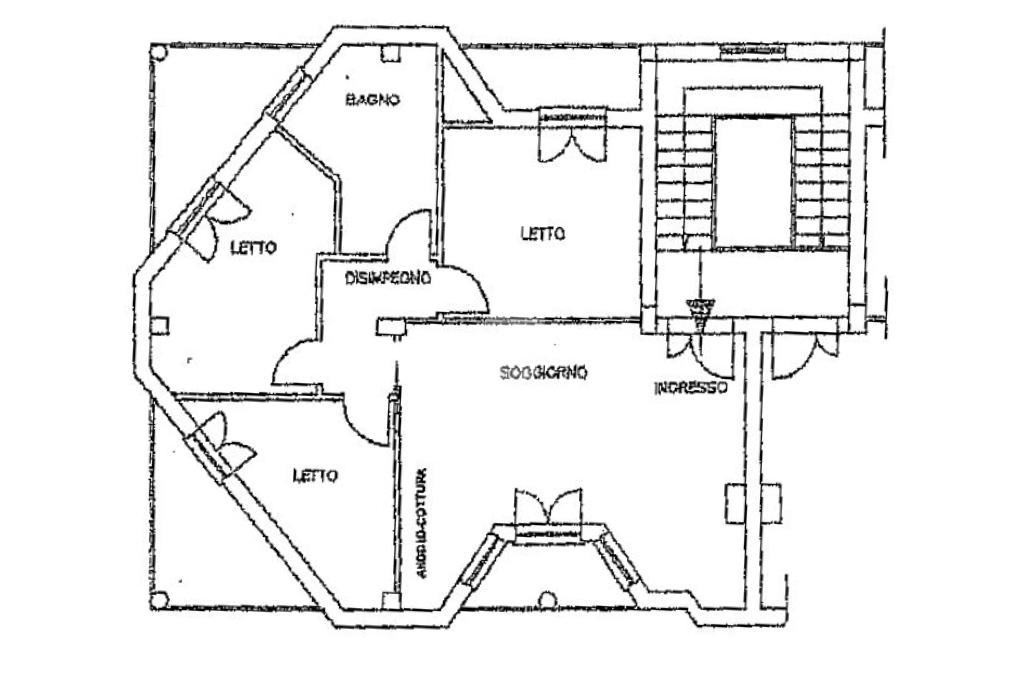
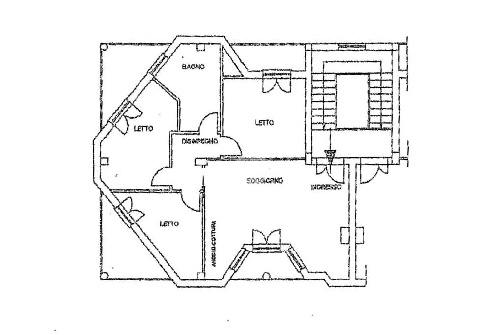
Scoppito, in contesto residenziale, posto in una zona servitissima, a pochi passi dalla Sanofi e dai centri commerciali (Pegaso, Longara ecc), proponiamo in vendita un appartamento sito al terzo ed ultimo piano senza ascensore.

La soluzione è composta da ingresso sul soggiorno con angolo cottura ed accesso ad un balcone, il disimpegno che ci conduce nella zona notte dove troviamo una camera matrimoniale con terrazzino, due camere singole di cui una con loggia e l'altra con balcone ed un bagno finestrato con doccia.

Internamente l'immobile presenta pavimentazione chiara, infissi in legno doppio vetro, portoncino blindato e riscaldamento autonomo.

Possibilità di parcheggio nella corte condominiale.

Attualmente l'immobile è locato fino a gennaio 2027.

La metratura e la zona servita, rendono la soluzione ideale sia per famiglie che per investimento.

Per informazioni e appuntamenti contattaci 0862.317322
Seguici sui nostri canali social Facebook ed Instagram.


Mostra tutto

Nelle vicinanze

Trasporto pubblico Trasporto pubblico
Sassa-Tornimparte
Sassa-Tornimparte
970 m
Trasporto pubblico
2,4 Km
L’Aquila Sassa Nucleo Sviluppo Industriale
L’Aquila Sassa Nucleo Sviluppo Industriale
2,4 Km
Scuole Scuole
Scuola primaria
1,7 Km
Farmacia Farmacia
Farmacia Longara
520 m
Farmacia Amiternina
2,4 Km
Ospedali Ospedali
Villa Letizia
2,3 Km
Distretto Sanitario di Tornimparte
2,9 Km
Negozi Negozi
Negozi
920 m
Minimarket Margherita
2,6 Km
Ristoranti Ristoranti
Ristorante Pizzeria
550 m
La Brace
580 m
Il Ristorantino
880 m
Mostra tutto

Caratteristiche

Rif.:
61154625
Piano:
3 di 3 (Piano attico)
Balconi:
2
Terrazzi:
1
Camere da letto:
3
Arredamento:
Assente
Mostra tutto
Prezzo Prezzo
€ 100.000
Rata mutuo Rata mutuo
€ 467 / mese
Spese annue Spese annue
€ 180
Proponi il tuo prezzoProponi il tuo prezzo

Classe Energetica

D
D
D
D
D
D
D
D
D
EP globale non rinnovabile:
1.00 kW h/m² anno
EP globale rinnovabile:
1.00 kW h/m² anno
EP invernale del fabbricato:
EP estiva del fabbricato:
Anno di costruzione:
2008
Riscaldamento:
Autonomo
Tipo impianto:
A radiatori
Tipo alimentazione:
Metano

Ti interessa visionare l'immobile?

Fissa un appuntamento  Fissa un appuntamento

Richiedi informazioni

Clicca su Leggi per aprire l'informativa
* Questi campi sono obbligatori

Calcola il tuo mutuo

Semplice e senza impegno
Anticipo

( % )
Mutuo

( % )

pochi semplici passi

inserisci i tuoi dati
Questionario completato
Grazie per aver richiesto un appuntamento senza impegno con un nostro Consulente del Credito e Assicurativo.

Hai inserito correttamente tutti i dati necessari e a breve riceverai una e-mail con un link da convalidare per inviare i tuoi dati.
Affiliato
Studio Aquila Centro Srl
P.zza Duomo, 48/49 67100 L'Aquila (AQ)

Il nostro staff


  • Giancarlo Carli
    Affiliato

  • Francesca Di Rocco
    Responsabile

  • Gianluca Ianni
    Responsabile

  • Mario Cococcia
    Affiliato

  • Filippo Cavatassi
    Collaboratore

  • Sara Minghetti
    Collaboratrice

  • Simona Mastrosanti
    Coordinatrice

  • Monica Trippitelli
    Collaboratrice
P.zza Duomo, 48/49 67100 L'Aquila (AQ)
Zona: L'Aquila Centro-Ovest
Mostra su mappa
Orari: dal lunedì al venerdì 9:00 - 13:00 e 15:00 - 19:30; sabato: 9:00 -13:00 e 15:30 - 18:00; domenica: chiuso
Affiliato
Studio Aquila Centro Srl
P.zza Duomo, 48/49 67100 L'Aquila (AQ)

2026 Tecnocasa Franchising S.p.A. - P. IVA 08365160152 - Via Monte Bianco 60/A 20089 Rozzano (MI). Ogni agenzia ha un proprio titolare ed è autonoma. Privacy policy | Policy utilizzo | Cookie policy