 
			 
				Nel pieno centro di L'Aquila, nel quartiere della Villa Comunale, in una posizione privilegiata e residenziale, proponiamo in vendita una villa singola, una soluzione abitativa unica e irripetibile per chi desidera vivere in un contesto indipendente e riservato, senza rinunciare alla comodità dei servizi cittadini.
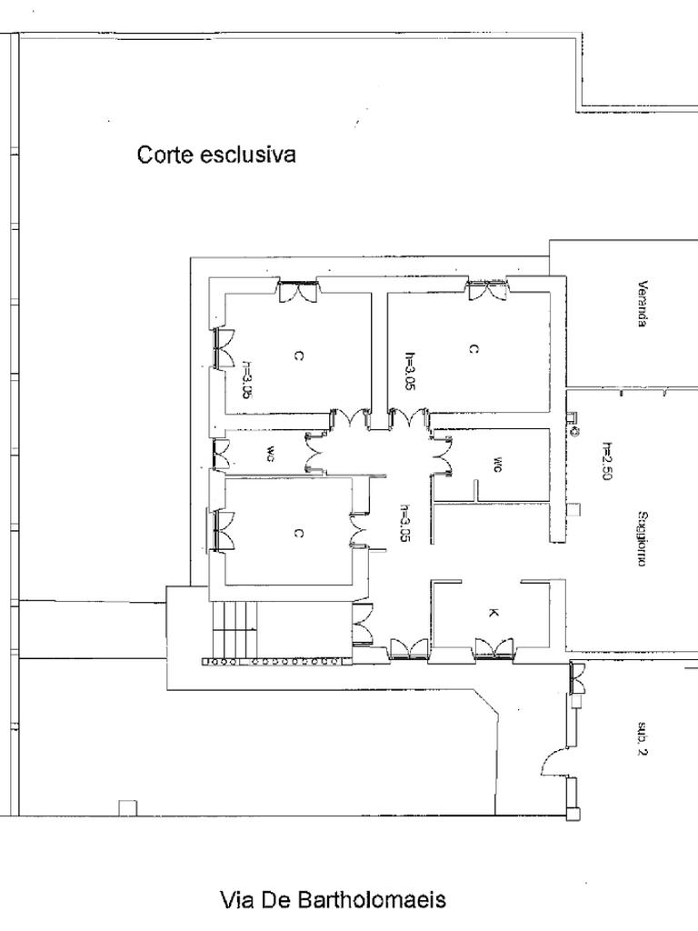
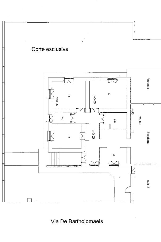
La proprietà, disposta su un unico livello, si distingue per i suoi spazi ampi, luminosi e ben distribuiti, circondati da un giardino privato di circa 300 mq, ideale per chi ama la tranquillità e il verde pur restando nel cuore della città.
L'abitazione si compone di un accogliente ingresso, un ampio e soleggiato soggiorno con terrazzo esposto a sud, una cucina abitabile con cucinotto separato, tre camere da letto spaziose, un bagno finestrato con doccia ed un secondo bagno con vasca.
Completano la proprietà una comoda cantina di 20 mq, un pratico box auto ed un curato giardino perimetrale, perfetto per momenti di relax e convivialità.
L'abitazione è stata recentemente ristrutturata e presenta pavimentazione in granito, infissi in PVC con doppio vetro e scuri, impianti elettrici e termoidraulici nuovi e caldaia a condensazione.
La villa rappresenta una soluzione abitativa unica, pensata per chi desidera vivere in un ambiente indipendente, luminoso e funzionale, senza rinunciare alla comodità dei servizi e alla vicinanza al centro città.
Per maggiori info contattaci allo 0862.317322
Seguici sui nostri canali social Facebook ed Instagram
Ti interessa visionare l'immobile?