Trilocale in vendita

L'Aquila, Via delle Bone Novelle - Centro Storico
€ 170.000
3 locali 3 locali
80 Mq 80 Mq
1 bagno 1 bagno

Trilocale in vendita

L'Aquila, Via delle Bone Novelle - Centro Storico

Descrizione annuncio

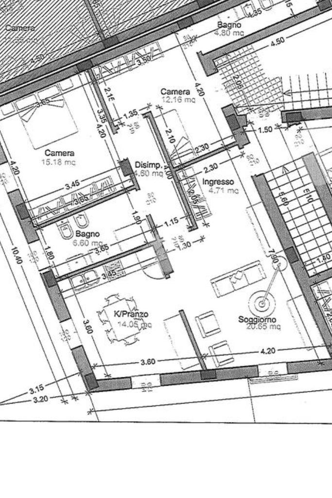
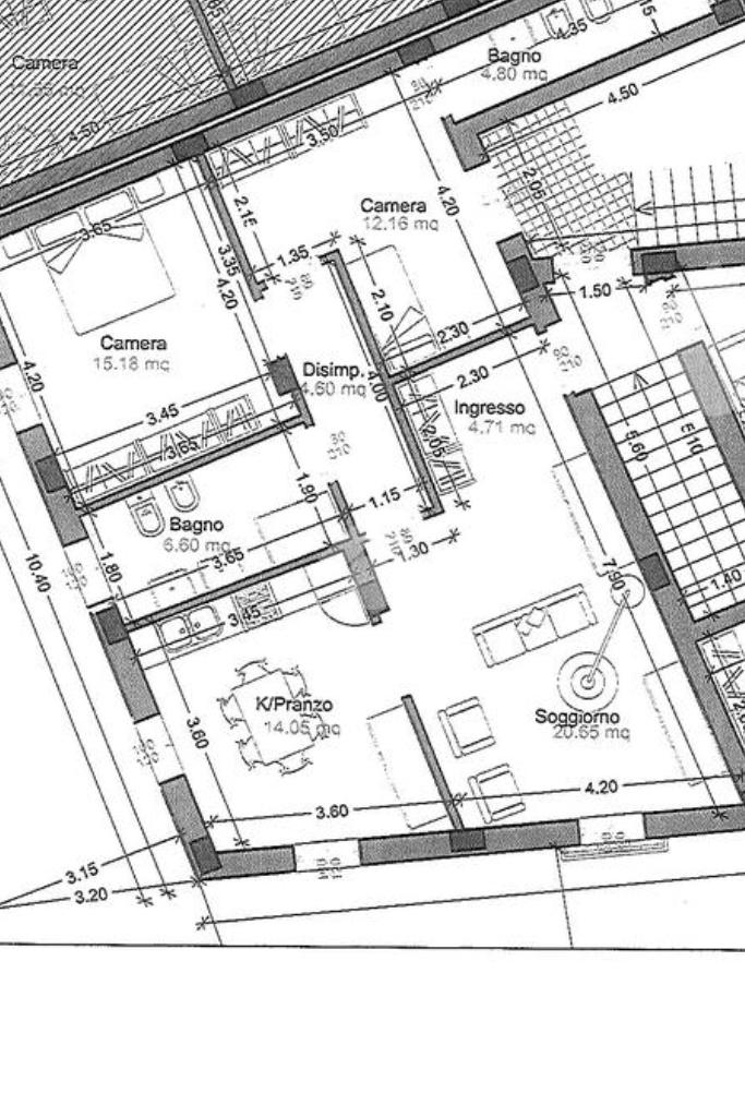
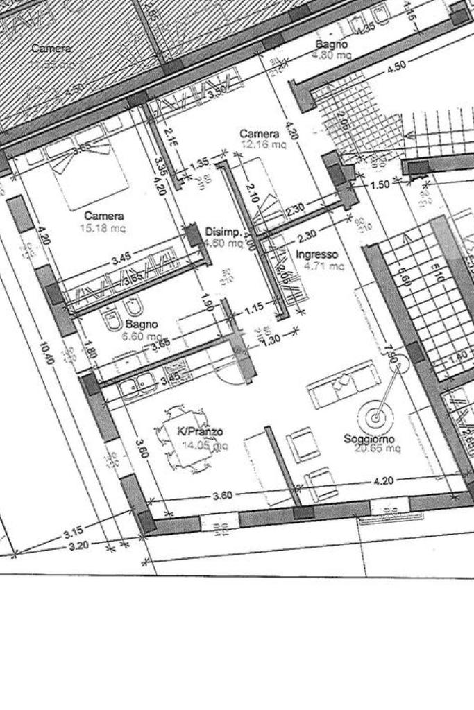
In Via delle Bone Novelle, nel cuore del centro storico e a pochi passi da Piazza Duomo, proponiamo in vendita un appartamento sito al primo piano di una palazzina di nuova costruzione in cemento armato.
La soluzione è composta da ingresso su soggiorno, cucina abitabile, disimpegno, due camere da letto ed un bagno finestarto con doccia.

Internamente la soluzione presenta pavimentazione e porte chiare, infissi in legno doppio vetro con scuri e riscaldamento autonomo.

La posizione centrale, vicina a servizi, istituzioni culturali e negozi, rappresenta un valore aggiunto significativo, rendendo questa soluzione ideale sia per chi desidera un investimento immobiliare di sicuro potenziale che come punto d'appoggio.

La costruzione demolita e ricostruita, rispetterà tutte le moderne caratteristiche antisismiche previste dalla nuova normativa e sarà dotata delle nuove tecnologie in campo termico ed energetico.

Consegna prevista per metà 2026.

Vuoi saperne di più?

Contattaci al numero 0862.317322 o scrivici sui nostri canali instagram o Facebook!

Mostra tutto

Nelle vicinanze

Trasporto pubblico Trasporto pubblico
L'Aquila
L'Aquila
860 m
Trasporto pubblico
80 m
XX Settembre
XX Settembre
610 m
Ricariche auto elettriche Ricariche auto elettriche
Eneldrive Nizza
950 m
Eneldrvie Strinella
1,2 Km
Eneldrive Panella
1,5 Km
Eneldrive Mezzanotte
1,8 Km
Eneldrive De Gasperi
1,8 Km
Scuole Scuole
Istituto Maestre Pie Filippine
130 m
GSSI - Student House
340 m
GSSI - Gymnasium
400 m
Rettorato Univaq
430 m
Ufficio Relazioni Internazionali
460 m
Farmacia Farmacia
Farmacia Moderna - Dott.ssa Fanini
800 m
Farmacia Comunale
940 m
Farmacia Sericchi
1,3 Km
Farmacia
1,5 Km
Farmacia Dell'Annunziata
1,8 Km
Ospedali Ospedali
Presidio Ospedaliero di Collemaggio
870 m
Croce Rossa Italiana - L'Aquila
1,3 Km
Distretto Sanitario dell'Aquila
1,9 Km
Supermercati Supermercati
Lidl
1,1 Km
In's
1,1 Km
Carrefour
1,1 Km
Unigross
1,2 Km
Conad
1,3 Km
Negozi Negozi
Forno Storico Cav. Giulio Placidi
280 m
Lele Snow & Street Shop
280 m
C'est la vie - Concept Store
290 m
Mazzeschi - Marella
300 m
G Boutique
310 m
Bar Bar
SUD Cantina Pensatoio
290 m
The Four Roses
320 m
Chalet della Villa
400 m
Hot Shot
450 m
Nero - Cocktail & Kitchen
490 m
Ristoranti Ristoranti
Il Girone dei Golosi
180 m
Parià - Pizzeria Partenopea
210 m
Fratelli Il Bacaro 2.0
270 m
Neko - Sushi L'Aquila
290 m
100 Montaditos
290 m
Mostra tutto

Caratteristiche

Rif.:
61144653
Piano:
1 di 2 (Piano medio)
Balconi:
1
Camere da letto:
2
Arredamento:
Assente
Condizionamento:
Assente
Mostra tutto
Prezzo Prezzo
€ 170.000
Rata mutuo Rata mutuo
€ 808 / mese
Spese annue Spese annue
€ 1
Proponi il tuo prezzoProponi il tuo prezzo

Classe Energetica

A1
A1
A1
A1
A1
A1
A1
A1
A1
EP globale non rinnovabile:
1.00 kW h/m² anno
EP globale rinnovabile:
1.00 kW h/m² anno
EP invernale del fabbricato:
EP estiva del fabbricato:
Anno di costruzione:
2025
Riscaldamento:
Autonomo
Tipo impianto:
A radiatori
Tipo alimentazione:
Metano

Ti interessa visionare l'immobile?

Fissa un appuntamento  Fissa un appuntamento

Richiedi informazioni

Clicca su Leggi per aprire l'informativa
* Questi campi sono obbligatori

Calcola il tuo mutuo

Semplice e senza impegno
Anticipo

( % )
Mutuo

( % )

pochi semplici passi

inserisci i tuoi dati
Questionario completato
Grazie per aver richiesto un appuntamento senza impegno con un nostro Consulente del Credito e Assicurativo.

Hai inserito correttamente tutti i dati necessari e a breve riceverai una e-mail con un link da convalidare per inviare i tuoi dati.
Affiliato
Studio Aquila Centro Srl
P.zza Duomo, 48/49 67100 L'Aquila (AQ)

Il nostro staff


  • Giancarlo Carli
    Affiliato

  • Francesca Di Rocco
    Responsabile

  • Gianluca Ianni
    Responsabile

  • Mario Cococcia
    Affiliato

  • Filippo Cavatassi
    Collaboratore

  • Sara Minghetti
    Collaboratrice

  • Simona Mastrosanti
    Coordinatrice

  • Monica Trippitelli
    Collaboratrice
P.zza Duomo, 48/49 67100 L'Aquila (AQ)
Zona: L'Aquila Centro-Ovest
Mostra su mappa
Orari: dal lunedì al venerdì 9:00 - 13:00 e 15:00 - 19:30; sabato: 9:00 -13:00 e 15:30 - 18:00; domenica: chiuso
Affiliato
Studio Aquila Centro Srl
P.zza Duomo, 48/49 67100 L'Aquila (AQ)

2026 Tecnocasa Franchising S.p.A. - P. IVA 08365160152 - Via Monte Bianco 60/A 20089 Rozzano (MI). Ogni agenzia ha un proprio titolare ed è autonoma. Privacy policy | Policy utilizzo | Cookie policy